de indeling van deze droomvilla is vóór de bouw volledig geoptimaliseerd en in 3D gevisualiseerd, waardoor alles tot in perfectie is uitgedacht
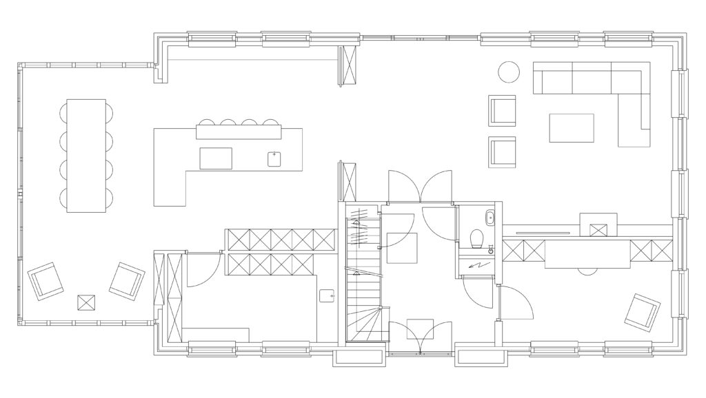
Voor de bouw kon er nog invloed uitgeoefend worden op de indeling en de positie van een mogelijke uitbouw aan de woning. Meerdere opties zijn bekeken, met uiteindelijk een lichte en ruime tuinkamer op het zuiden als resultaat. Hiermee maak je optimaal gebruik van het uitzicht en is de keuken het centrale punt van de woning geworden. De woonkamer en keuken/eetkamer zijn hiermee in verhouding, waardoor het ontwerp zeer gebalanceerd aanvoelt en er voldoende zitplekjes gecreëerd konden worden. In de keuken is gekozen voor een gave L-vorm, waardoor je meer ín de keuken staat als ertegen. Hierdoor scherm je de keukenzone optisch meer af. Aan het eind van het eiland is een zitje met barkrukken getekend, zodat het ruim 4 meter lange eiland niet te massaal oogt. Het stalen plafondframe Jamie geeft extra sfeer en aflegruimte voor keukenaccessoires. Op de kopse kant is een wijnkoeler ingetekend die vanaf de eethoek eenvoudig te bereiken is. Achter de zwarte deur is de bijkeuken gesitueerd, waar een extra werkblad en veel opbergruimte aan toegevoegd is.
Deze stijl van de woning is minimalistisch-klassiek, een moderne op eenvoud geïnspireerde stijl met klassieke kenmerken. Aan de linkerzijde van de woning (zuid-zijde) is in plaats van een veranda gekozen voor een grote tuinkamer welke uitkijkt op een prachtig dalletje. Met die reden is gekozen om de woonkamer naar de noordzijde te verplaatsen, waardoor je ’s avonds knusser TV kijkt, hoewel je ook vanaf de bank een prachtig uitzicht hebt op een bosrijke omgeving.
De plattegrond laat de indeling zien van de villa, waarbij de keuken centraal gesitueerd is. Vanaf de keuken heb je een goed overzicht op de ruimte en overzie je de omgeving erg goed. Aan de eettafel is het heerlijk licht en kun je fantastisch genieten van het prachtige uitzicht. Door rekening te houden met zichtlijnen voelt het open en ruimtelijk. Intimiteit wordt verzorgd door te werken met gelaagdheid, zoals het stalen plafondframe boven de keuken.
door bewust meerdere variaties in te tekenen krijg je een goed beeld van de mogelijkheden en onstaan ideëen die anders wellicht over het hoofd worden gezien
Tijdens het ontwerpproces worden veel opties bedacht en de beste daarvan worden ingetekend. Aan de hand van een prioriteitenlijst kan hiermee een juiste keuze gemaakt worden, zodat het gekozen ontwerp het beste aansluit bij de belangrijkste eisen. Door de realistische visualisaties ervaar je alsof je er midden in staat en weet je precies wat je kunt verwachten. Details als afmetingen van de plinten, kleuren van wanden en breedtes van kozijnen worden ook besproken en ingetekend om elke vorm van twijfel weg te nemen.
Om een goede vergelijking te kunnen maken in de materialen is hier een haard afgebeeld voorzien van vachtbehang. Hiermee ontstaat er minder contrast tussen de naastgelegen kasten en voelt het meer als één geheel. Wel voelt het ook wat massiever aan.
In dit voorbeeld is gekozen voor een behang met een beige-goudtint. Dit benadrukt de luxe uitstraling maar onderbreekt de kastenwand enigszins. Door dit verschil vooraf in kaart te brengen kun je een goede keuze maken tussen beide ontwerpen, die beide een mooi resultaat geven.
harmonieus Verlichtingsplan
Naast het interieurontwerp is ook het verlichtingsplan sterk onder de loep genomen. De hoeveelheid spots maar ook de positie en kleurstelling is in dit ontwerp meegenomen. Het lichtplan is gesimuleerd om de invloed van het licht in de ruimte te kunnen ervaren. Zelf de hoeveelheid spotjes in de maatwerkkasten is hiermee vooraf in kaart gebracht. Gekozen is voor afwisselend dubbele en enkele spots die – waar mogelijk – in lijn met elkaar zijn geplaatst voor een harmonieus resultaat. Ook in het stalen plafondframe van de keuken zijn functionele spots aangebracht die het werkblad goed uitlichten. Ook is een plan opgesteld voor slimme aansturing van de spots door middel van Philips Hue.








